
12 Weston Ave
Chatham
,
NJ
A Modern Interpretation of Classic Residential Design
Situated on Weston Avenue, 12 Weston Avenue presents a carefully planned new construction home designed to deliver efficiency, comfort, and long-term livability. With strong architectural lines, an open layout, and a finished lower level, the home offers a balanced living environment that supports modern lifestyles while fitting seamlessly into the surrounding neighborhood.
Overview
Status
Coming Soon
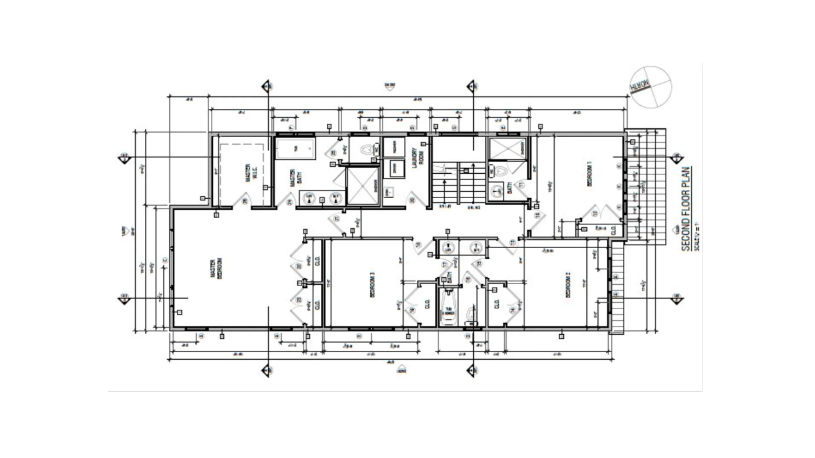
Bedrooms
5
Bathrooms
5
Living Area
0
Sq.Ft
Lot Size
0.19 Acres
Design + Build Details
Overall
• 5 bedrooms
• 5 full bathrooms
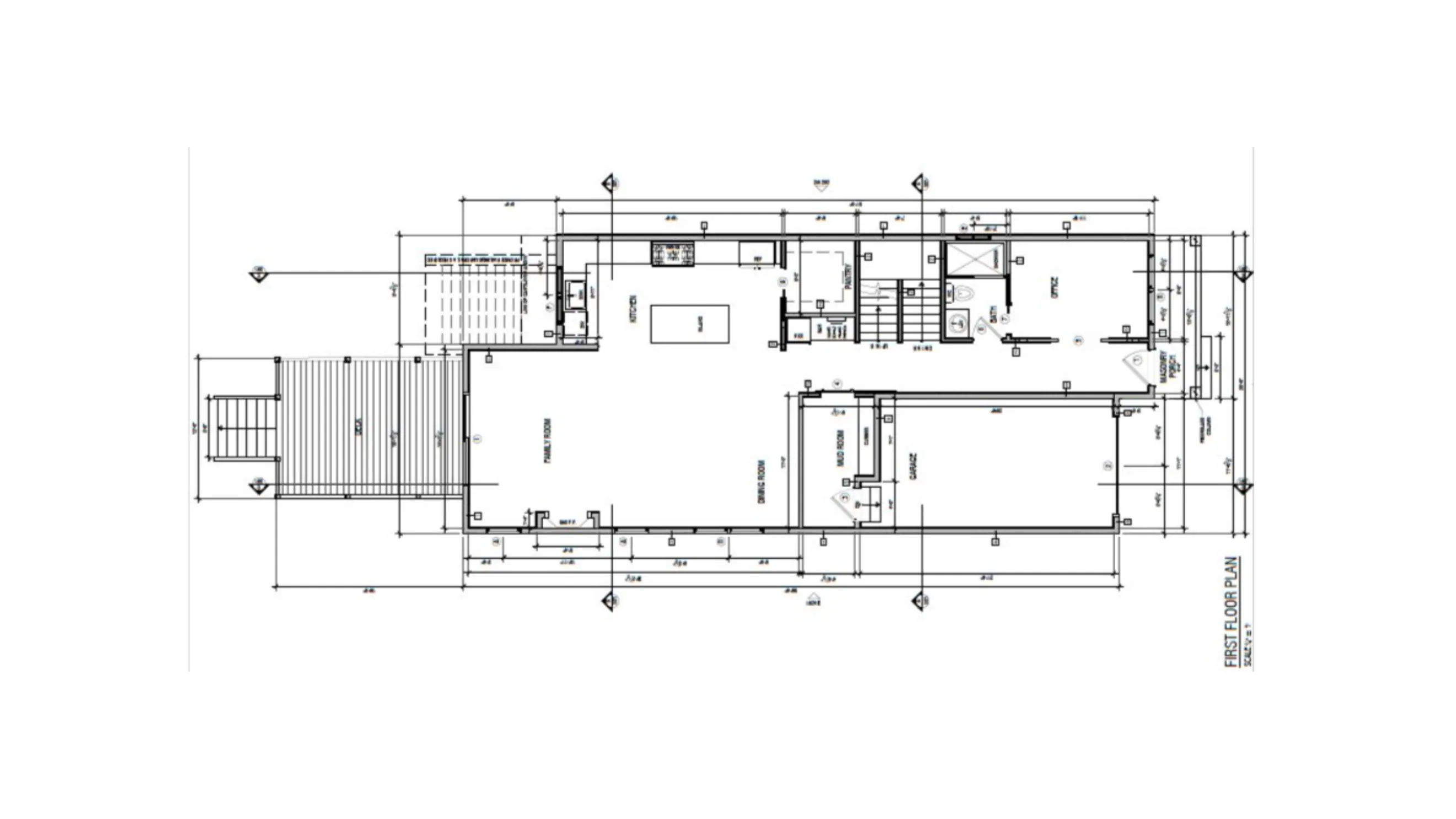
• 2nd Floor Laundry Room
• Open concept floor plan
• 9’ ceiling height on 1st floor, 9’ with cathedral ceiling on 2nd floor, and 9’ in the basement
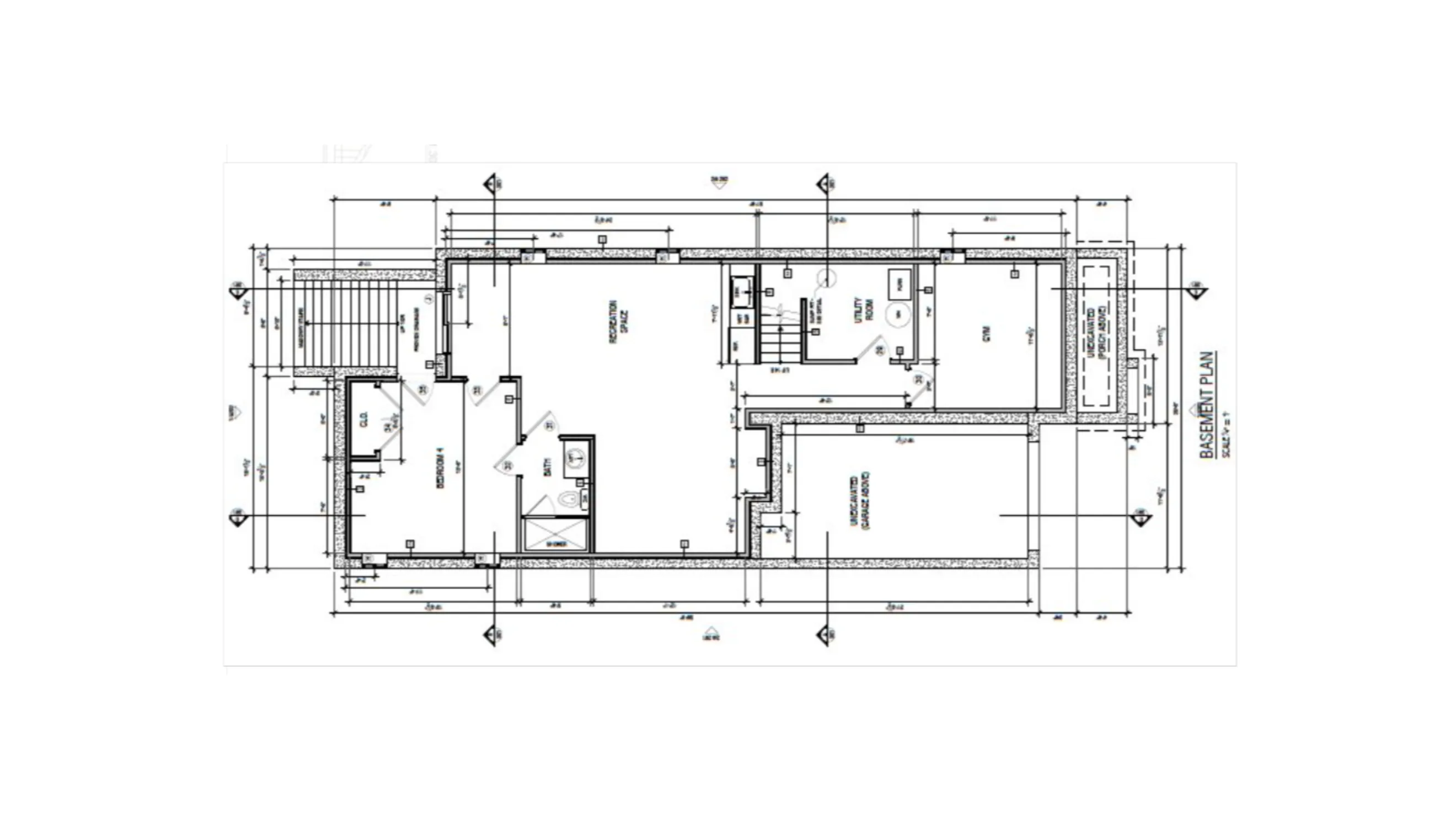
• Full finished basement, bedroom with above grade window, full bath, large open area, and ample storage
• 1 car garage
Indoors
• Custom white-faced staircase with black rod custom balusters
• White Oak 7” wide Hardwood floors throughout
• Mudroom area with cubbies, bench, and hooks
• Sliding doors with sidelites in family room leading to deck
• Combination of black, gold, and chrome hardware
• Master walk-in-closet with custom cabinetry
• Natural gas fireplace with custom trim surround
• Custom trim designs
• Trimmed walls in dining room and foyer
• 2nd floor laundry with sink and cabinetry
• 3-Zone heating and cooling with Nest
Outside
• Hardie plank siding board and shaker and batten accents around entire exterior
• Mahogany front door
• Custom black exterior/black interior windows
• Large walkout deck from family room
• Paved driveway with Belgian block curbing and paver walkway
• Landscaping with Sod, Mulch, and a variety of bushes and flowers
Kitchen
• Shaker white double high cabinets to ceiling with crown moldings, soft-close drawers, black hardware
• Large center island
• White quartz countertops with veins
• Viking High-end professional style stainless steel appliances
Lot & Dimensions
• Acres: 0.19*
• Lot Size: ~50’ x 168’
• Square Footage: 8,402










